说到二十世纪的建筑样式,我们需要考虑创造了先锋建筑的现代运动的起源。先锋(Avant-garde)这个发育词汇原本是描述先锋部队的军事用语,如今被用来形容有意识地反对现状并转而支持新提议的各种文化形式。这种新提议开辟了希望其他人追随的道路。先锋艺术出现在十九世纪中期的欧洲,尤其是法国,当时的艺术家、建筑师和作家以及他们的支持者们反对制度化品味。这种品味曾经催生了模仿辛克尔的阿尔特博物馆或戛纳的巴黎歌剧院的缺乏创意的建筑。欧洲大陆的一些优秀人物如今希望以比同类工艺美术运动更加激进的方式表达他们对那种已建秩序的不满。他们反对国家的制度化赞助或至少在制度外工作,并对资产阶级的地位提出了挑战。许多先锋艺术作品,比如巴勃罗·毕加索(Pablo Picasso)和乔治·布拉克(Georges Braque)的立体绘画,晦涩难懂、充满矛盾,而不具备传统意义上的美丽。
早在十九世纪九十年代进行的一些尝试就为这种正式实验的爆发创造了珍贵的先例。第一代先锋建筑师们提出了众多如何创新的方法,不过他们中只有极少人积极支持后来的创新者。先锋艺术的支持者们假定创新形式能够支持改革的政治目标。这在有些时候是正确的,但新建筑形式并不总是与经济、社会或政治变化相关。
Art nouveau这个法语单词的意思是“新艺术派”,诞生于十九世纪九十年代的比利时首都布鲁塞尔。在像建于1895-1898年的范·艾特菲尔德公馆(Van Eetvelde House)的建筑中,维克多·奥塔(Victor Horta)领先创建了一种融合钢结构、风格化植物装饰、开放照明空间的新综合结构(图22.1)。奥塔是一位建筑师,他在十九世纪的最后十年里和二十世纪的前几年里远远地偏离了其接受的美术教育。到十九世纪末,富裕的比利时人对单一家庭城镇住宅的喜爱多过当时巴黎和大多数其他大型欧洲城市所具有的典型城市公寓,也多过在说英语地区日渐普遍的半独立式或完全独立式郊区房屋。这部分是因为经济高度工业化的比利时是钢铁的主要生产地。到1890年,许多房屋的建筑师已经采用铁过梁加大窗户。奥塔更加先进,他系统性地采用铁结构,以为建立在又深又窄的地块上的房屋提供更充足的照明。奥塔在范·艾特菲尔德公馆的中间打开一个洞口,在其中安插了一个两层楼高的房间。该房间以天窗照明,顶面安装彩色玻璃。这个漂亮的中庭的作用不仅仅在于指引访客从简朴的入口前往主要接待室,它还为奢华娱乐提供了舞台背景。范·艾特菲尔德公馆的立面是挂在入口平面前的一帘悬挂铁幕。

图22.1 比利时布鲁塞尔的范·艾特菲尔德公馆的内部,由维克多·奥塔设计,建于1895-1901年
奥塔认为建筑应该体现现代性,而不只是提供一个逃避现代性的舒适处所,但他并不反对奢华。奥塔如同其他新艺术派建筑师和设计师一样,喜欢通常受到植物形状启发的鞭索曲线。有时候,此类装饰完全脱离了象征符号,变成了纯粹由抽象线条构成的网状结构。这些线条同时模糊了结构和装饰之间的界限。在范·艾特菲尔德公馆的中庭中,无论是支撑着玻璃屋顶膜结构的有点像茎梗的铁墩,还是支撑花状电灯装置的茎梗,都几乎没有具象特征。新艺术派的新装饰元素通常也与采用的具体材料无关。奥塔在地面上镶贴的马赛克上以及墙面涂刷的膜版印刷装饰上都采用了与环绕上部楼层和楼梯的半结构式铁栏杆相同的母题。奥塔是一代设计改革家之一。这些改革家们仿照理查德·瓦格纳(Richard Wagner)树立的榜样,用统一的效果取代了中上层阶级住宅中展现的各种样式和手工艺品,以获得一种心理效果以及视觉和谐感。瓦格纳是一位德国作曲家。他创作抒情诗,并积极参与歌剧表演。
尽管奥塔像比利时先锋艺术派的许多成员一样,具有社会主义同情心,甚至为比利时工党设计了人民宫(Maison du Peuple),不过他的主要赞助人都是富裕的工业家。男爵埃德蒙·范·艾特菲尔德是比利时国王利奥波德二世(Leopold II)对非洲刚果进行臭名昭著的剥削性私人领主统治的首席行政官。刚果地区有数百万居民在殖民初期死亡。用以建造这座公馆的财富以及装饰其许多房间的热带树木都来自这种残酷的统治。这种统治甚至令那些不愿对该时期的其他殖民帝国提出挑战的同时代人震惊。
到1900年,新艺术派风格已经传播到了欧洲大部分地区。然而,当这种风格被证明只是一种潮流,而不是对已建建筑实践模式的有效综合挑战时,它很快便失败了。新艺术派装饰便于应用在那些结构和平面保持不变的建筑的各个立面上。新艺术派广告和廉价的消费产品很快体现了这种风格在定义一个可识别的精英阶层方面的优势。流行这种潮流时兴的中心是巴黎。先锋建筑风格从定义上看是只应用在少数建筑上的,而巴黎的大多数建筑并未受到这种一时流行的风格的影响。然而,它却在百货商店和咖啡店中非常流行。在这些地方,有关新事物的消息非常重要。这种建筑风格还标识出了通向巴黎新地铁系统的入口。地铁这种新铁路网络日渐将欧洲城市中心与新外围地区联系起来。新艺术派在巴黎的主要追随者赫克多·吉马德(Hector Guimard)在1899-1905年间设计了这些地铁入口(图22.2)

图22.2 法国巴黎的阿贝斯地铁站,由赫克多·吉马德设计,建于1900年
新艺术的曲线装饰有时候令人想起洛可可式风格。当时,法国对奢侈品生产的垄断地位日渐受到其他欧洲国家尤其是英国和德国的朴素设计的威胁,而新艺术风格的出现振兴了精美的法国奢侈品市场。然而,吉从马德对地铁入口的设计可看出,他甚至比奥塔更加拥护工业生产。他直面现代化的主要方面之一:批量生产。铸铁建筑正面早在十九世纪中期就已经开始生产,而预制建筑也并非新事物。然而,将先锋艺术融入批量生产却是新鲜的,且具有预言性。吉马德的地铁入口整个巴黎复制了几种批量生产的标准设计。它们的统一风格具有重要意义,既使得这种穿越巴黎的新交通方式易于辨认,同时还节省了时间和金钱。
在说德语的中欧地区,新艺术风格也被称为Jugendstil或者说青年派。受到该地区的传统巴洛克风格的影响,新艺术在奥匈帝国所呈现的形式与其在法国和比利时呈现的形式稍有不同。约瑟夫·玛利亚·奥尔布里希(Joseph Maria Olbrich)的维也纳分离派博物馆(Secession Building)竣工于1898年(图22.3)。它是由一群以画家古斯塔夫·克里姆特(Gustave Klimt)为首的艺术家们委托建造的。克里姆特在此不久前正式退出了国家美术学院。自十七世纪末起,该美术学院一直赞助艺术家教育,支持他们展出作品。到十九世纪,它还为国家博物馆收购藏品。克里姆特和其他人还组织了分离派展会,提供了其它展示地点。

图22.3 奥地利维也纳的分离派博物馆,由约瑟夫·玛利亚·奥尔布里希设计,建于1898年
奥尔布里希负责体现主要体制变化。他像莱特一样转向早期建筑形式。莱特在1904年的路易斯安那博览会(Louisiana Purchase Exposition)上看到了奥尔布里希的作品,对其极尽夸赞。事实上,对块状分离派博物馆的了解无疑给了莱特后来设计联合教堂的勇气。二十世纪建筑文化的最重要特征之一便是,杂志上的发表作品以及众多建筑师日渐国际化的旅行和实践使得创新设计的影响范围远远超出其实际所在的地方。为了宣传其首次展会,奥尔布里希设计了描述分离派博物馆的海报,以此方式为印刷文化做出了部分贡献。
分离派博物馆上刻了一句话(德语),其意思是“对时间而言,它是艺术;对艺术而言,它是自由。”奥尔布里希所接受的教育是古典学术性的。古典学术强调对称和宏大的规模,这种特点的影响至今仍然可见。自建筑侧面的风格化玫瑰花丛开始,奥尔布里希以大胆新颖的方式框住了这种传统结构,而玫瑰花丛还在开放性金属穹顶的结构上重现。如同在穹顶两侧的塔式结构上一样,这种玫瑰花丛装饰还与深入建筑历史——这里是古埃及——的努力结合起来,而深入历史是为了建立看似不为时间改变的稳定性,就像联合教堂一样。建筑内部同样新颖。开放式平面允许空间的重新分配,以便举行不同的展会。该博物馆里在最先举行的展会之一上将苏格兰建筑师查尔斯·雷尼·马金托什(Charles Rennie Mackintosh) 和他的艺术家妻子玛格丽特·麦克唐纳·马金托什(Margaret MacDonald Mackintosh)创作的作品引进了维也纳。
维也纳人喜欢马金托什夫妇将新艺术典型的自然风格化和女性形式与日渐严肃的直线性进行对比的方式。就像柳茶馆(Willow Tea Rooms)的奢华客厅(Salon de Luxe)清楚展现的一样,马金托什夫妇几乎不排斥装饰(图22.4)。柳茶馆位于苏格兰格拉斯哥,于1903年开业。这里,如同在工艺美术式住宅中一样,装饰和建筑形式构成了一个统一整体,然而形式不再表现对工业前历史的怀念。干净明快的白色家具反衬着精美的抽象彩色玻璃门和只是稍微更具代表性的装饰彩色玻璃。除了门上镶嵌的类珠宝饰品之外,这种环境的奢华体现在用心的装饰上,而不是奢华的装饰材料上。主顾们如想在这里享用茶水,就要比在这座建筑中同样也由马克托什夫妇设计的其他房间里喝茶多支付一便士。

图22.4 苏格兰格拉斯哥的柳茶馆的奢华客厅,由查尔斯·马金托什设计,建于1903年
尽管玛格丽特·马克托什对女性形式和花卉图案的连续使用可能具有性别暗示,就像众多新艺术装饰一样,柳茶馆却保留了美学尝试和渐进社会变革之间的工艺美术联系。格拉斯哥连锁茶馆的所有者凯瑟琳·克兰斯顿(Catherine Cranston)通过将家庭美学推广到公共领域,来鼓励女性前往市中心,同时维持将她的茶馆区别于竞争者的茶馆的独特外观。茶馆尽管同时向两性开放,却为单个或结伴女性在市中心愉快的用餐和享用下午茶提供单独空间。茶馆中的一些房间只对女性开放。在商铺上班的女性来此享用午餐,有时候还在此用晚餐。更加富裕的女性则在购物前后在此慢慢享用茶水。克兰斯顿的许多顾客像她本人一样是禁酒运动的成员,因此茶馆不供应酒精饮料。光顾茶馆的女性能够避免遭受醉汉的骚扰,而这种事情在该城的其他饭店和酒吧经常发生。
在很多年里,马克托什夫妇巧妙地在抽象和装饰中获取平衡,但现代运动的其他前辈却更愿意考虑完全摈弃装饰。自二十世纪二十年代起,一篇原本晦涩难懂的文章被以多种译文版本广泛发表。在这篇文章里,维也纳建筑师阿道夫·卢斯(Adolf Loos)隐晦地将装饰与罪恶联系起来。建于1912年的肖依宅邸(Scheu House)呈立方体状,其立面无任何装饰,如同柳茶馆稍作修饰的立面一样,被视为现代运动偏爱白色盒子造型的前期范例。卢斯著述的大多数文章都令人震惊。他像先锋派对手一样喜爱奢华的材料和微妙的细节,但他讥讽他们的作品,强烈批判他们采用整体分析的方法进行设计的行为。相反,卢斯试图设计能在不断变化的潮流中留存的环境艺术。肖依宅邸是为一位活跃于田园城市运动的律师和他的担任儿童书籍编辑的妻子修建的。它的门廊装饰非常朴实(图22.5)。支撑上层楼层的横梁给人一种结构感。一些墙体上镶贴着普通木板。窗玻璃的上半部分被整齐的细分成小格。房间的家具由业主而不是建筑师选择,还可随着居住者品味的变化而改变。

图22.5 奥地利维也纳的肖依宅邸的楼梯间,由阿道夫·卢斯设计,建于1912年
卢斯对在抽象绘画出现之前产生的应用装饰的谴责启发了新一代建筑师。这些建筑师们将墙体视为空间分隔物,而不是结构元素。尤其是在二十世纪前十年里,立体主义艺术家、表现主义艺术家、未来主义者、构成主义者和风格主义者树立的榜样促使他们采用钢筋混凝土和框架钢结构来创造非对称、开放的平面。非表现派艺术和新建筑技术的融合同样也鼓励了众多建筑师接受受严肃工厂建筑外观影响的美学观。他们在1918-1932年间确立了极简主义的名声。这种美学观点之所以对他们具有吸引力既是因为它从定义上看是现代的,也因为它提供了历史主义之外的另一种引人注意的选择。他们的作品直至今天仍然符合现代建筑的大多数定义。尽管这种建筑在当时以及之后被其倡导者和批判者广泛视为共产主义的象征,或至少是社会主义民主的象征,然而造价相对较高的单一家庭住宅以及一座政府修建的凉亭(一个重要例子)为这种新建筑样式提供了重要的展示窗口。
这种触动了尝试的艺术通常被视为1914年8月至1918年11月的第一次世界大战爆发的前兆。最初的交战国——德国、奥地利、塞尔维亚、俄罗斯、比利时、法国和英国——的大多数居民满怀喜悦地迎接战争的爆发。他们认为这将是一场短期冲突,他们所在的一方将战胜敌国。然而,军事技术的进步导致交战双方都有数百万人死亡,而战役中的获胜方也不过惨胜而已。所有参战国的经济都遭受了严重破坏。在许多国家里,人们的生活质量直到二十世纪五十年代才见改善。其政治效应也同样具有天启性,随着三大帝国坍塌,取而代之的是共产主义苏联、脆弱的民主德国以及新独立的波兰、芬兰、爱沙尼亚、立陶宛、拉脱维亚、奥地利、匈牙利、捷克斯洛伐克和新组建的南斯拉夫。
战争使得战胜者回归珍贵的国家传统,很多情况下显示出清晰的古典主义联系。然而,它使战败国甚至包括这些国家的很多保持中立的居民,从与名誉扫地的政体紧密相关的传统中解脱了出来。在整场战争过程中保持中立的荷兰早在二十世纪头十年里就已经成为了种类异常繁多的建筑样式的实验室,其建筑在国外广受称赞。新荷兰风格之一便是“de Stijl”,在荷兰语中意为“风格主义”。如同战争期间的先锋抽象艺术的众多样例,这种风格受到了新艺术潮流的启发,在这里指受到了皮特·蒙德里安(Piet Mondria)和特奥·凡·杜斯伯格(Theo van Doesburg)的严格直线性抽象主义的启发。位于乌得勒支(Utrecht)郊区的施罗德宅邸(Schroeder House)建于1922年,竣工于1923年,由赫里特·里特费尔德(Gerrit Rietveld)与其业主特鲁斯·施罗德(Truus Schroeder)共同设计。这栋宅邸突出了在空间中悬浮的多个原色平面与空间自由的交叠。这种空间自由来自于将承重砖墙改变为框架结构(图22.6)。

图22.6 荷兰乌得勒支的施罗德宅邸,由皮特·蒙德里安和特奥·凡·杜斯伯格设计,建于1922-1923年
从街道看过去,施罗德宅邸看起来就像一个先锋建筑的典型样例。混凝土楼板衬托出以明亮的原色突显的钢梁。楼板和钢梁共同界定了阳台并遮挡了内部空间。然而,对独自养育三个孩子的遗孀母亲施罗德来说,新颖的美学和结构是不够的,她决意挣脱她所体会到的令人窒息的中产阶级家庭生活传统。上层楼层的平面布局表现了融合正式和社会体验的改革性选择(图22.7)。推拉隔断提供了灵活性,施罗德将这种灵活性等同于自我表达。在位于街道上层的主楼层上,她和孩子们可自主设置隔断来提供私人休息空间,除了厕所和浴室外,所有隔断都面向一个大空间。他们还可将隔断竖立在任何连接位置上。施罗德宅邸能够满足业主的需求,部分是因为尽管里特费尔德设计了所有装饰,施罗德和她的孩子们却能控制空间使用的方式。没有任何其他地方能以比这里更加愉快、更少矫饰的方式实现个人自由和新建筑形式之间的平衡。施罗德在其余生中一直在此居住。这是为特定的人物创造的特定环境,而不是用于大量生产的原型。尽管该建筑广受称赞,它仍然是独一无二的。

图22.7 施罗德宅邸的平面图
萨伏伊别墅(Villa Savoye)是一座位于巴黎郊区普瓦西(Poissy)的周末度假别墅,由勒·柯布西耶(Le Corbusier) 建于1928-1930年。在这座别墅中,对正式问题的关注促生了一幅与资产阶级家庭生活相矛盾的图像(图22.8)。这座欧洲最著名的先锋建筑的开放性平面利用了框架结构的空间可能性,然而,它却完全没有那种融入施罗德宅邸的个人自由的感觉。勒·柯布西耶发出了“选择建筑而不是改革”的著名宣言,暗示欧洲中产阶级所居住的建筑的规划、施工以及外观的变化能取代更加基本的社会重组。

图22.8 法国普瓦西的萨伏伊别墅,由勒·柯布西耶设计,建于1928-1931年
尽管他从未接受传统建筑学校的教育,这位二十世纪最具影响力的建筑师却在过去和现在的建筑学中打下了牢固的基础。作为一个年轻男子,查尔斯-埃杜阿德·杰恩雷特(Charles-Edouard Jeaneret)(自1920年起他开始称自己为勒·柯布西耶)尝试了众多现代建筑样式,既有相对传统的风格,也有先锋风格。他在1905年修建了自己的第一座房屋,这年他十八岁。从1905年到二十世纪二十年代,他从工艺美术运动成员转而成为了具有创意的新古典主义者,后来又开始拥护立体主义的一种保守形式,他称之为纯粹主义。作为瑞士本土人,他拥有的良好地位使得他能够了解德国和说法语国家的最新当代建筑。在第一次世界大战前,他访问了维也纳,并在柏林和巴黎短暂工作过一段时间。他经由希腊旅行到了土耳其。他称赞了希腊的帕特农神庙和刷上了白色涂料的当地建筑。1917年,他开始在巴黎定居,并在那里成为了支持大量生产的现代建筑模式的第一批战后建筑师之一。在这个时期,许多年轻的建筑师受到了战时经历的重创,而工业因与现代武器联系起来而遭到了许多人的怀疑。此时,勒·柯布西耶意识到,技术进步能为美好未来的乐观展望提供模板。
勒·柯布西耶将住宅描述为“生活的机器”。他暗示,尽管住宅更大且缺乏便携性,却能加以合理规划,并能像当时最激动人心的新机器即汽车和飞机一样进行有效生产。到二十世纪二十年代早期,对福特汽车的装配线生产的颂扬极大地启发了许多欧洲先锋派建筑师。他们希望房屋很快也能以标准化成套产品的形式进行修建。理论上,这将有利于降低生产成本,帮助化解在过度拥挤的城市以及遗留战场上尤为紧迫的住宅危机。勒·柯布西耶的雪铁龙宅邸(Citrohan)是一个工业化生产的原型住宅工程,建于1922年。该工程的名称仿效了法国汽车制造商雪铁龙(Citroen)的名称。建筑师们还利用工业母题来表现显然冷酷的客观形象,尽管如此,这种客观形象也保留了一种技术浪漫的氛围。勒·柯布西耶并非欣赏豪华远洋客轮的紧凑结构的唯一建筑师。
勒·柯布西耶很可能并没有打算让萨伏伊别墅成为复制的对象。相反,这座房子是一项研究成果,其混凝土框架结构允许超常的空间管理。被他称为底层架空柱(pilotis)的裸露混凝土柱子支撑着混凝土楼板。墙体由砖块砌筑并覆以灰泥。建筑师没有按照严格的网格设置柱子(图22.9)。对那些习惯于关注建筑细节的人们来说,这提供了一种使(唯一明显的)合理设计生动起来的张力。建筑师谨慎地表现了他对标准承重结构的偏离。他将上层楼层的显著盒装结构与通过洞口产生的腐蚀作用结合起来。而如果外墙是承重墙,洞口不可能实现的。建筑师以带型窗围护两层没有屋顶的阳台以及整栋楼的主要生活区。有些窗户没有安装玻璃。带型窗之所以设置在二楼是借鉴了文艺复兴时期以后的欧洲宫殿、城市宅邸和豪华的公寓楼范例,不同的是勒·柯布西耶让居住者悬空于草坪之上,而不是商业街之上。

图22.9 萨伏伊别墅的平面图
卫生是一个重要卖点,可用来说服资产阶级目标群放弃炫富并选择暗示工业现代化的抽象形象。勒·柯布西耶将上层楼层以及支撑它的底层架空柱涂成白色。绿色的墙体将凹进去的地面层进一步推出视线之外。在建筑内部,设置在显眼位置上的洗手盆可供从巴黎来的访客洗手或洗脸。他们可在洗去驾车旅程的一身灰尘后再前往楼上的主要居住区。洗手盆是借助技术实现清洁的标识。尽管在其他背景下,工业美学代表工人阶级权利的增加,但勒·柯布西耶却提供了许多资产阶级便利设施。这种设施常见于设计风格不那么激进的度假住宅中。他将供留宿仆人居住的房间放在车库后面。楼上的厨房完全与房屋所有者的生活空间隔离。设计师假定房屋所有者从不下厨做饭和打扫卫生。仆人们只能使用一个旋转楼梯,而楼梯同时也是一件抽象艺术品。如往常一样,他们不能使用通往二楼的正式通道。正式通道是一个缓坡,而不是一段楼梯。勒·柯布西耶在之后的职业生涯中偏爱缓坡,部分是因为它们能够提供空间体验,此外还以为它们标记了建筑和更加普通的环境之间的界限。
勒·柯布西耶关注穿过建筑的体验而不是漂亮的手工细节。他在建筑内建立的空间联系别出心裁。上层结构中的封闭房间按传统方式装饰。其中面向天台的墙体安装全高玻璃,人们可透过玻璃观看精心圈定的周边山水风景(图22.10)。一个缓坡将屋顶平台与三楼的观景平台连接起来。人们从观景平台可观看四周看,或真正俯瞰房屋的内部。勒·柯布西耶引人瞩目地宣称“建筑就是巧妙、正确、漂亮地摆弄聚集在光线下的块体。”他在这里提供了一处休憩处,以供人们观看光和影在房屋的古朴表面以及远处的乡村上的变幻。

图22.10 萨伏伊别墅的屋顶平台
里特费尔德与施罗德紧密合作,将施罗德宅邸按照后者想居住的方式加以改建,而勒·柯布西耶设计萨伏伊别墅的首要目的却是引起其他建筑师的注意。对那些建筑师而言,这座别墅变成了一个朝圣所。最初,观众大多是通过发表在专业杂志和有关其建筑师以及现代建筑的著作上插入的经过精心拍摄的照片了解这座别墅的。勒·柯布西耶相继出版了有关完工作品的著作。这些著作以及之后出现的法语、德语和英语译本只是一种受到最广泛阅读的新建筑风格的样例。它们专门描述一个独立建筑师或建筑公司的作品,通常是以向柯布西耶进行咨询的方式完成的(在这个较早的时期,没有出现有关女性建筑师的专题论著)。
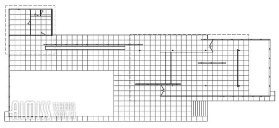
德国馆(German Pavilion)最初是为1929年的世界博览会修建的,位于西班牙巴塞罗那。它的故事证明直接体验建筑对建筑是否受到广泛称赞并没有决定作用。该展馆由路德维格·密斯·凡·德·罗(Ludwig Mies van der Rohe)设计,在博览会结束后被拆除。在1981-1986年,它又在原址上得以重建,部分是为了满足游客的需求,因为有些游客仍在寻找它,没有意识到它已经消失。密斯具有极大的设计自由,因为这栋建筑的功能仅限于为西班牙国王和王后提供前来在访客留言簿上签字的空间。就在第一次世界大战结束十年后,这种认可形式对德国政府而言仍然重要。如同勒·柯布西耶,密斯对框架结构和抽象绘画的结合很感兴趣。该展馆的平面图有可能成为一幅风格主义绘画(图22.11)。展馆的墙体看似完全独立于支撑屋顶楼板的柱子。展馆内的所有空间都没有采用四面实体墙界定。相反,建筑内的硬石平面以及透明和半透明的玻璃片可自由滑动。

图22.11 西班牙巴塞罗那德国馆的平面图,由路德维格·密斯·凡·德·罗设计,建于1929年
如同里特费尔德、施罗德和勒·柯布西耶,密斯采用了开放式平面布局,但与他们不同的是,他创建了一个足够奢华、适合接待预期的王室来宾的环境。里特费尔德喜欢将明亮的颜色涂在木材、钢材和混凝土上。勒·柯布西耶在萨伏伊别墅的大部分结构上采用了统一的白色灰泥覆面。受到专业伙伴兼朋友莉莉·瑞克(Lilly Reich)的影响,密斯采用吸引人们注意其本身的感观的表面(图22.12)。瑞克一开始独自工作,但后来与密斯合作为德国多种行业设计了抽象风格的商品交易会展馆。她还与夏洛特·佩里安(Charlotte Perriand)(后者曾与勒·柯布西耶合作)以及艾琳·格雷(Eileen Gray)共同引领了高雅现代主义风格,以表达自己从十九世纪女性传统中解放出来的事实。有着漂亮纹理的理石反射在闪亮的镀铬柱面上,形成对历史主义装饰的漂亮回应,既反应了它丰富的材料,也保留了现代主义抽象和其对机器时代的光滑的迷恋。在美国股市崩盘后的第二年十月,国际经济危机爆发。这削弱了人们借助这种有效的方式表达现代主义奢华的直接兴趣。然而,德国馆再次提供了令人信服的证据,证明先锋建筑并不需要挑战像民族国家这样的已建机构,相反,它可能为它们提供有效的支持。

图22.12 德国馆的内部,首次建于1929年,重建于1981-1986年
无论建筑师的政治主张如何,无论这种主张如何影响设计,先锋建筑偏离传统品味的事实在很多情况下隔离了工人阶级以及中产阶级目标群体。尽管现代主义辩论具有包容性,许多建筑师发现这种距离是必要的,有助于形成他们各自的特别才能。这种特别才能对许多建筑师而言仍然重要,即便是在二十世纪二十年代那个人们对匿名机械美学极感兴趣的时期。当然不是对所有建筑师都重要。先锋建筑风格总是面临这样的危险:它只是一时的潮流,而不是利用技术来改善未来特别是改善住宅条件来完成自己的使命。
同时,先锋建筑师在创建被普遍认为抓住了那个时代的精神的建筑风格方面获得了巨大成功。在大约一百年里,将抽象艺术与工业图像融合的方式充分地表达了创新性。先锋风格的兴起极为普通,最初常常出现在为狂热爱好者精心打造的建筑上,但最终却占领世界各地的大部分建筑,其主要原因是粗糙的复制品的造价相对较低。当风格受到房地产开发商或权威的拥护时,象征可能经常战胜现实,但事实证明,建筑师们通过利用最新技术以从历史中解脱的希望是持久的。
本文摘自《1400年以来的建筑》一书第二十二章,原题为“ 先锋派之创出 ”。

《1400年以来的建筑:一部基于全球视角的建筑史教科书》,[美]凯瑟琳•詹姆斯-柴克拉柏蒂著,贺艳飞译,广西师范大学出版社2017年01月
(声明:本文仅代表作者观点,不代表艾米时尚网立场。)
[资讯] 2021年11月7日,中国,北京——胖虎三里屯旗舰店开业活动盛大举行。开业以时尚蜕变,永续...
[资讯] 2013年成立伊始,来自瑞典的时装品牌& Other Stories从位于斯德哥尔摩、巴黎及洛杉矶三...
[资讯] 2021年7月7日到9日, 黎巴嫩奢华高定品牌Maison Signature(玫森·赛妮尔)全新高定系...
